콘텐츠로 바로가기
>
PALLETSCAPE
>
SOLARSCAPE
요즈음건축
검색…
ABOUT
PROJECT
메뉴 열기
ALL
IN PROCESS
ARCHITECTURE
INTERIOR
INSTALLATION
MEDIA
INSTAGRAM
CONTACT
>
PALLETSCAPE
>
SOLARSCAPE
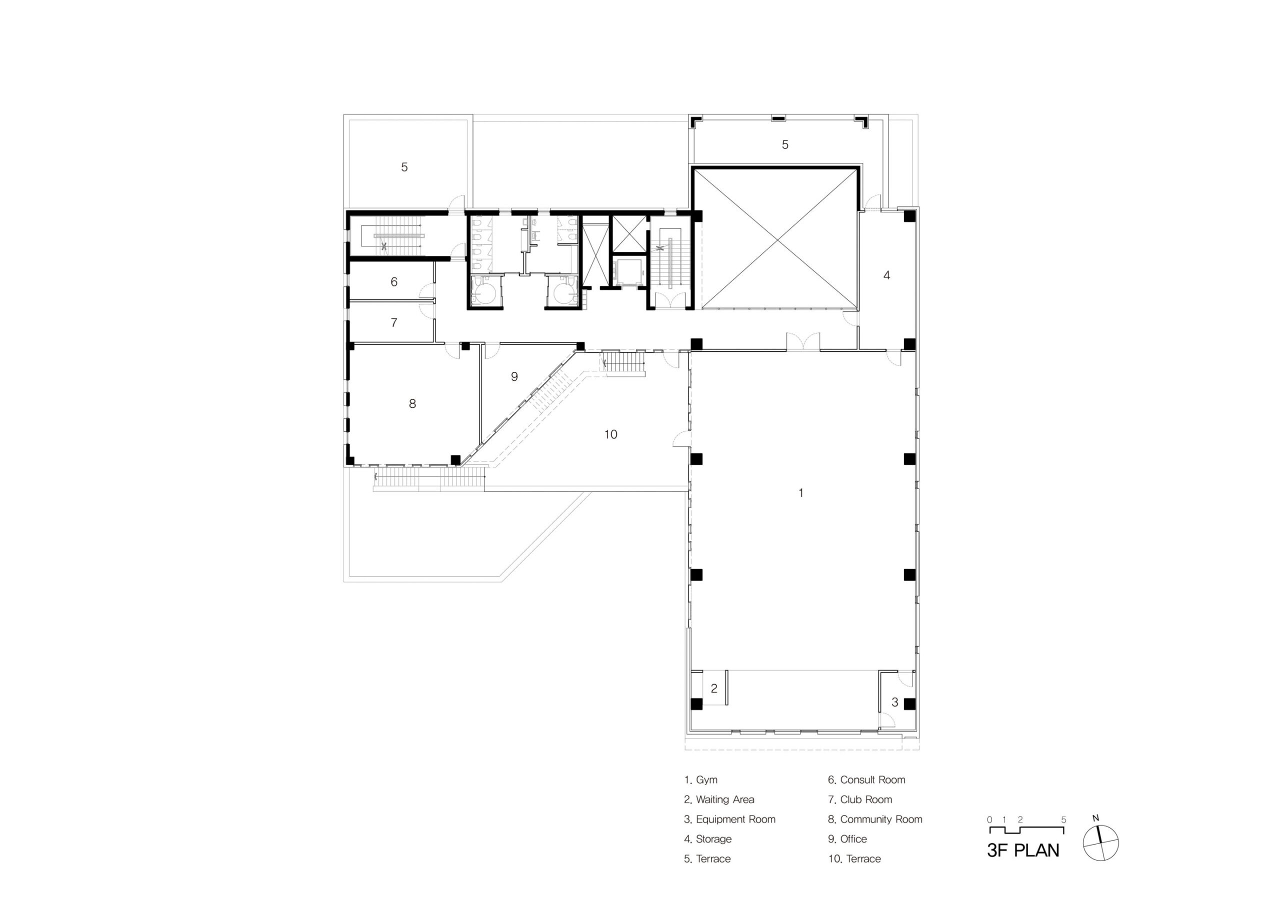
1층 평면도_영어 300(A4)