Along the Market (공릉동도깨비시장 고객지원센터) 2025.4
Architect: HG-Architecture (국형걸, 조정은, 박재완 )
Location: 노원구 공릉동 584-5, Seoul, , Republic of Korea
Photo Credit : All Photos © Kyungsub Shin
‘도깨비시장 고객지원센터’는 노원구의 대표적인 전통시장인 도깨비시장을 지원하기 위한 공공복합시설이다. 시장의 입구 골목에 위치한 대지는 남측으로는 주거와 근린생활시설이 밀집한 서울의 일상적 골목의 끝이자, 북측으로는 활기 넘치는 전통시장 골목의 시작점이라는 상반된 도시 맥락을 가진다. 본 건물은 이러한 대비적 환경 속에서 시장과 도시를 연결하는 경계이자 관문으로 계획되었다.
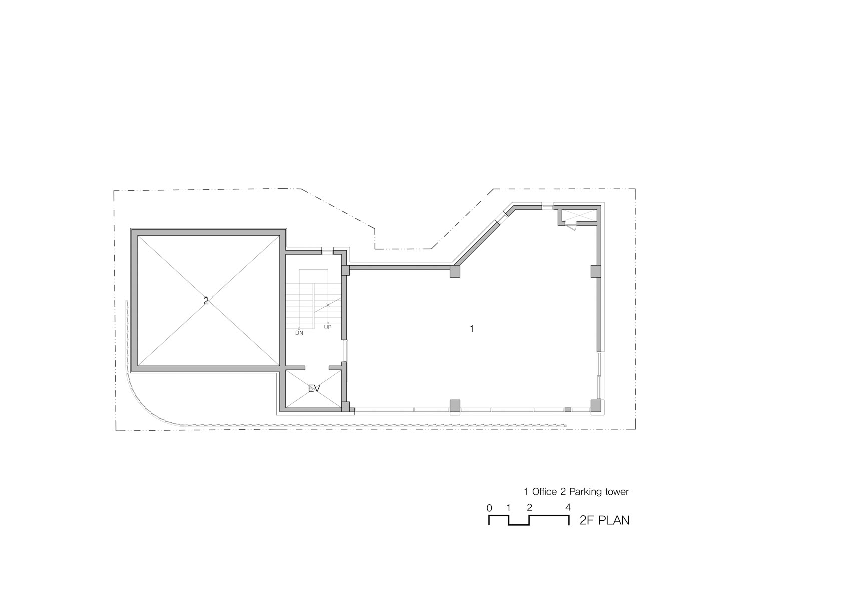
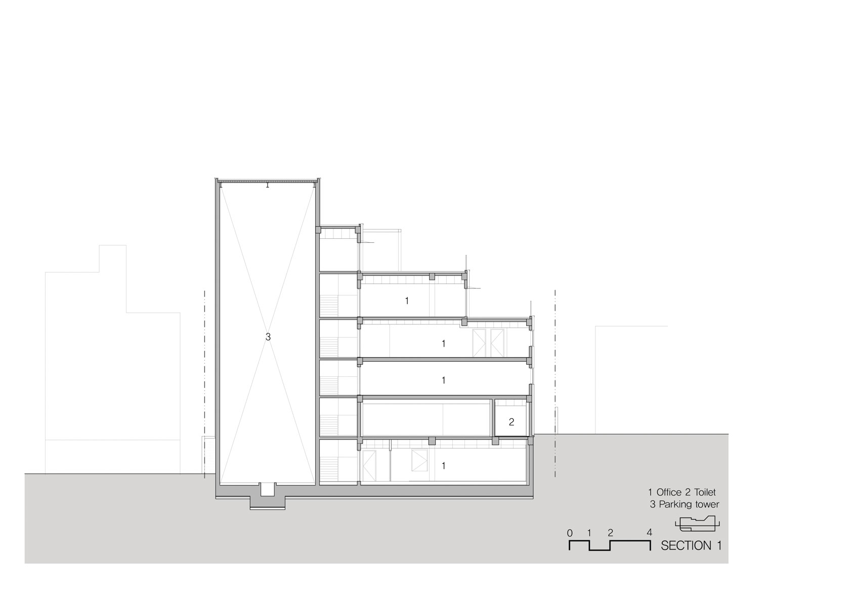
프로그램은 시장 이용객을 위한 주차타워, 공중화장실, 고객지원센터, 커뮤니티공간, 마을카페 등으로 구성된다. 남측에는 주차타워를, 북측에는 시장 관련 시설을 두고, 그 사이의 버퍼 공간에 수직동선을 배치하여 기능과 동선 간의 연계를 유도하였다. 또한 동서 방향의 단차를 활용해 필로티 공간을 열어 지상층 개방감을 확보하고, 상부에는 계단식 테라스를 계획하여 시장 쪽으로 열린 풍경을 유도하였다.
건물의 외피는 도깨비시장의 상징색을 모티프로 한 다색 스크린으로 계획되었다. 주거지역의 좁은 골목에서 내부 공간의 프라이버시를 보호하는 동시에, 외부로는 은은한 색과 빛으로 시장의 활기를 전달한다. 주차타워와 다양한 공공 프로그램을 하나의 조형 언어로 감싸는 이 외피는 스틸(PosMAC®) 소재의 루버형 패널로, 디지털 패브리케이션 기술을 통해 무용접 조립 방식으로 제작되었다. 파사드 상세 설계부터 정밀 가공, 자동 절곡, 목업 검증까지의 일련의 과정을 통해 완성된 이 외피는 구조적 합리성과 첨단 재료 실험의 결과물이다.
‘도깨비’가 변화무쌍한 존재를 상징하듯, 본 건물은 가변적인 프로그램과 반투명한 외피를 통해 시장의 생동감을 건축적으로 구현한다. 도시와 시장이 만나는 경계에서, 이 건물은 도깨비시장의 장소성을 시각적·공간적으로 확장하는 상징적 장치로 자리한다.
